Службой строительного контроля выявлено непроектное положение готовых железобетонных конструкций торцевых монолитных железобетонных стен в зоне деформационного шва блок секций возводимого жилого дома, при смещении материала деформационного шва (пенополистирола ЭППС), вследствие недостаточного закрепления в опалубке, произошло изменение фактических толщин торцевых стен, образующих узел деформационного шва. Общий вид стен с выявленными дефектами представлен на рисунке ниже
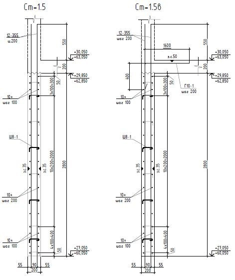
В соответствии с рабочей документацией, толщина стен 200 мм, вертикальное армирование d20А500 с шагом 200 мм, расстояние до центров арматурных стержней составляет 55 мм. Горизонтальное армирование d16А500 с шагом 100-200мм, толщина защитного слоя бетона составляет 35 мм. Проектный класс бетона конструкций В30. Лицевая поверхность конструкции не покрыта отделочными, защитными и иными видами покрытий, сухая, после распалубки. Схема расположения и армирования стен представлена на рисунке ниже
Для определения параметров выявленных отклонений, выполнено обследование стен ультразвуковым эхометодом с помощью томографа ультразвукового низкочастотного А1040Mira в характерных сечениях стены в нижней, средней и верхней трети по высоте конструкции. Участки обследования равномерно с регулярным шагом распределены по лицевой поверхности стен по длине и высоте. Общее количество участков составило 42.
Результатом обследования, являлись отдельные В-томограммы (В-сканы) участков обследования с выявляемыми на них образами стержней вертикальной арматуры и донными образами.
По глубине расположения (координата Z) донных образов, делались выводы о фактической толщине конструкции на участке обследования. Каждому участку был присвоен порядковый номер, и, в соответствии с порядковыми номерами, полученные результаты наносились на схемы расположения участков обследования.
В качестве иллюстрации метода, на рисунках ниже приведены В-томограммы на участках торцевых стен, и, соответствующие им, выполненные прямые измерения толщин стен с помощью стальных рулеток.
По результатам обследования торцевых монолитных железобетонных стен подтверждено изменение фактической толщины по высоте и по длине. Фактическая толщина конструкций находится в диапазоне 100-300мм, при проектной толщине 200 мм.























